Centrum Sztuki Współczesnej ŁAŹNIA 2, ul. Strajku Dokerów 5, Gdańsk, Nowy Port tel.: 58 50 00 234
Kasa biletowa kina "KinoPort": Tel.: +48 58 5000 232
Dojazd od Dworca Głównego w Gdańsku: tramwaj 10, 7, autobus 158. Z Gdańska-Wrzeszcza tramwaj 5
15 grudnia 2012 roku otworzono Centrum Sztuki Współczesnej Łaźnia 2 - Centrum Edukacji Artystycznej. Dzięki niezwykłemu połączeniu współczesnej artystycznej wizji z dawnym zabytkowym charakterem łaźni, budynek Centrum Edukacji Artystycznej Łaźnia 2 został wyróżniony w prestiżowym konkursie Generalnego Konserwatora Zabytków „Zabytek Zadbany 2013”. Narodowy Instytut Dziedzictwa docenił przede wszystkim przywrócenie budynkowi „wyglądu i estetyki z czasu powstania”, staranność projektu oraz wyraźne odróżnienie nowoczesnego wnętrza od oryginalnej struktury budynku.
TROCHĘ HISTORII
Nadbrzeżna osada
XVI wiek - 1772
Na terenie dzisiejszego Nowego Portu już w XVI wieku znajdowała się mała osada rybacka. Dzisiejszy kształt Nowego Portu zaczął się jednak tworzyć dopiero w XVII wieku, o wiele wcześniej niż pojawiła się dzisiejsza nazwa tej dzielnicy.
Ujście Wisły, które przez wieki było główną droga handlową Polski, to jeden z ważniejszych strategicznych punktów nie tylko w kraju, ale w skali całego Bałtyku i północnej Europy. Nie dziwi więc, że miejsce to umacniano, budując potężną twierdzę Wisłoujście. W 1627 na lewym, zachodnim brzegu Wisły wybudowano fortyfikację, którą nazwano Szańcem Zachodnim, w odróżnieniu od starszego i większego założenia na wschodnim brzegu Wisły, nazywanego Szańcem Wschodnim Wisłoujścia. Nie była to udana realizacja. Umocnienie było kilka razy przebudowywane, a w końcu w 1654 r. rozebrano je i rok później wybudowany nowy Szaniec Zachodni. Był on usytuowany dokładnie naprzeciw większej, wschodniej części twierdzy, na terenie ograniczonym dzisiaj brzegiem rzeki i ulicami: Starowiślną, Władysława IV i Jana Długosza.
Pod koniec XVII w. na przedpolu Szańca Zachodniego założono niewielki cmentarz. Umieszczono go tam, gdzie dzisiaj znajduje się rondo u zbiegu ulic Władysława IV i Wyzwolenia. Cmentarz służył załodze Twierdzy Wisłoujście. W fortecy tej zawsze stacjonowała dość liczna załoga z jeszcze liczniejszymi rodzinami. Twierdza funkcjonowała więc w XVII i XVIII wieku jak całkiem spora osada. O wiele mniej było stałych cywilnych mieszkańców terenu na lewym brzegu Wisły. Działały tu trzy karczma. Najstarsza z nich, Hackenkrug, powstała być może już w XVI w. przy dzisiejszej ulicy Oliwskiej, w pobliżu rogu obecnej ulicy Księdza Mariana Góreckiego. Dwie pozostałe nosiły nazwę karczem „Balastowych” i były usytuowane nad Wisłą. Jedna z nich znajdowała się tam, gdzie ulica Oliwska dochodzi do brzegu rzeki. Druga karczma Balastowa stała na południe od Szańca Zachodniego, w pobliżu cmentarza i przeprawy promowej przez Wisłę. Od tej przeprawy w kierunku północno-wschodnim wiódł trakt łączący Wisłoujście z wsią Brzeźno i z ominięciem jeziora Zaspa z Nowymi Szkotami i Gdańskiem. Trakt ten był jedną z najstarszych dróg powstałych na terenie dzisiejszego Nowego Portu. Większość najwcześniejszej zabudowy przyszłego Nowego Portu powstawała jednak dalej na północ, na brzegu Wisły naprzeciwko Westerplatte.
Wisła wpadała wówczas do Morza w miejscu dzisiejszego Zakrętu Pięciu Gwizdków. Po obu stronach ujścia rzeki w XVII wieku zaczęły się tworzyć piaszczyste łachy, które przekształciły się w wyspy. Nazwano je Osterplatte i Westerplatte. Osterplatte szybko połączyło się z lądem, natomiast druga z wysp przetrwała. W XVII wieku z Zatoki Gdańskiej do portu nad Motławą można było dotrzeć dwiema drogami wodnymi. Jedna z nich to Głębia Północna na wschód do Westerplatte, w miejscu dzisiejszej nasady półwyspu. Druga droga z Gdańska na Bałtyk, nazywana Głębią Zachodnią, początkowo miała małe znaczenie. Komisja ekspertów powołana w 1672 r. stwierdziła jednak, że zachodnia droga wodna powinna być utrzymana i poszerzona. W tym celu pogłębiono ją i zabezpieczono od strony wschodniej przez falochron i śluzę. Po 1716 r. wylot Głębi Zachodniej od strony Zatoki Gdańskiej zabezpieczono dwoma falochronami, każdy o długości ponad kilometra. Te wielkie roboty inżynieryjne spowodowały, że w miejscu Głębi Zachodniej powstał regularny, zabezpieczony przed sztormami i zamulaniem przez Wisłę kanał, nazywany Neu Fahr Wasser (Nowy Tor Wodny), a potem po prostu Hafen Kanal (Kanał Portowy). Zarówno polska nazwa dzielnicy używana od końca XIX w., jak i niemiecka (Neufahrwasser) pochodzą od kanału, który umożliwił jej powstanie i do dzisiaj warunkuje byt Nowego Portu.
Głębia Północna ulegała coraz większemu zapiaszczenie i zamknięto ją dla ruchu większych statków. Kanał Portowy tym bardziej zyskał na znaczeniu. Zaczął powstawać potencjał przyszłego rozwoju miejscowości, w której w 1772 r. oprócz wspomnianych trzech karczem i cmentarza było zaledwie siedem domów mieszkalnych. Były jednak sygnały rosnącego znaczenia Nowego Portu. Co najmniej od 1758 r., a może już o wiele wcześniej, działały tu dwie latarnie morskie, wskazujące statkom bezpieczną drogę. Istotnym problemem hamującym rozwój Nowego Portu był brak dogodnej drogi lądowej do Gdańska. Istniał tylko okrężny szlak wokół jeziora Zaspa i bagnistych terenów sąsiadujących z jeziorem, przez Nowe Szkoty.
Nowy port w Nowym Porcie
1772-1807
W 1772 roku Prusy zajęły przedmieścia Gdańska, w tym Nowy Port. Sam Gdańsk pozostał w granicach Polski, ale król Prus Fryderyk II rozpoczął wojnę ekonomiczną przeciw miastu. Elementem tej walki był Nowy Port. Prusac
y otoczyli maleńką miejscowość fortyfikacjami i rozpoczęli jej rozbudowę jako konkurencji dla portu nad Motławą. Posterunki w Nowym Porcie pobierały wysokie cła od statków, które miały płynąć w górę Wisły w kierunku Motławy a niekiedy nakazywały wyładunek towarów. Kapitanowie małych statków próbowali niekiedy przepływać do Gdańska przez pozostającą pod kontrolą miasta Głębię Północną, aby omijać pruskie posterunki, ale i ta droga została zablokowana. Wszystkie towary musiały wpływać i wypływać z Gdańska Kanałem Portowym, przy którym powstały nabrzeża przeładunkowe, place składowe, karczmy dla marynarzy, browar i gorzelnia zaopatrujące te karczmy w trunki.
plan z 1805 roku
W 1807 r. Nowy Port miał już 90 domów i stałych 840 mieszkańców. Miejscowość składała się z kilku ulic. Główną z nich był wschodni odcinek późniejszej Olivaer Straße (Oliwskiej). Na północ, w kierunku nabrzeży portowych, odchodziła od niej nieistniejąca już Schleuzen Straße (ulica Śluzowa), wiodąca w kierunku śluzy zamykającej Kanał Portowy od strony wschodniej. Kolejną w kierunku wschodnim boczną ulicą prowadzącą od Olivaer Straße do nabrzeża była Schul Straße (ulica Szkolna), której nazwa pochodzi od znajdującej się tutaj instytucji edukacyjnej założonej w 1785 r. Kolejna, równoległa do ulicy Szkolnej była Salz Straße (Solec) prowadząca do składów solnych nad Kanałem Portowym. Dalej na wschód, między ulicą Oliwską a kanałem działał wapiennik. Na północ od Szańca Zachodniego znajdował się drugi wielki zespół magazynów soli. Niedaleko śluzy stanął drewniany portowy żuraw.
Istotną rolę w rozwoju Nowego Portu odegrał jego mieszkaniec Mathias Broschke. Wybudował on wiele spośród wspomnianych wcześniej obiektów, zorganizował handel a także sfinansował budowę krótszej i wygodniejszej drogi do Gdańska wzdłuż brzegu Wisły.
Ułani, landwerzyści i marynarze
1807-1813
W 1807 r. miały nastąpić kolejne inwestycje w Nowym Porcie. Realizacja tych planów została jednak uniemożliwiona przez wojny napoleońskie. Na przełomie lutego i marca 1807 na przedpola Gdańska dotarły wojska cesarza Francuzów z oddziałami francuskimi, polskimi, saskimi i badeńskimi. Rozpoczęło się oblężenie miasta bronionego przez wojska pruskie i rosyjskie. 16 marca polska Legia Północna uderzyła z kierunku Wrzeszcza na Szaniec Wapienny nad Wisłą. Dziesięć dni
później, w Wielki Czwartek, rozpoczął się kontratak. Żołnierze pruskiej Landwehry pod dowództwem majora von Krockowa uderzyli z Nowego Portu na oddziały Legii Północnej rozlokowane we Wrzeszczu. Atak ten został odparty przez ułanów generała Michała Sokolnickiego. Po zwycięstwie wojsk napoleońskich Nowy Port został włączony do utworzonego w maju 1807 roku Wolnego Miasta Gdańska.
Sześć lat później Gdańsk przeżył kolejne oblężenie. Tym razem broniony przez żołnierzy z 22 różnych krajów. Oblegającymi byli głównie Rosjanie z pomocą Prusaków oraz angielskiej floty, która ostrzelała Nowy Port w 1812 r. W następnym roku Rosjanie oblegali Francuzów zacięcie broniących się na terenie Nowego Portu. Miejscowość została częściowo zniszczona ale bardzo szybko nie tylko powróciła do stanu sprzed wojny, ale zaczęła się rozrastać.
Rozwój
1814-1920
W 1817 r. ustalono nowe granice administracyjne Gdańska. Nowy Port znalazł się w tych granicach wytyczonych z uwzględnieniem dawnych podziałów własnościowych. Brzeźno i tereny wokół jeziora Zaspa należały do Oliwy, stanowiącej zupełnie oddzielny organizm administracyjny. Częścią Gdańska stał się natomiast wąski pas wzdłuż Wisły - droga zbudowana przez Matthiasa Broschke.
Port na Motławie został połączony administracyjnie ze swoim młodszym, konkurencyjnym odpowiednikiem. Wkrótce okazało się, że nowsza część gdańskiego portu jest coraz ważniejsza dla rozwoju miasta. Rosnący tonaż, a co za tym idzie większe zanurzenie statków, spowodowały że duże jednostki przestały wpływać na wody Motławy. Coraz więcej towarów zaczęto przeładowywać w Nowym Porcie, który wymagał ciągłych inwestycji. W latach 1824-1838 powstał kamienny falochron na północnym brzegu zachodniego wylotu Kanału Portowego. W 1840 r. Wisła przerwała wały i znalazła sobie nowe ujście koło wsi Górki. Osady nanoszone przez Wisłę zamulały Głębię Północną, co spowodowało że pięć lat później zdecydowano o budowie grobli łączącej Westerplatte z lądem. Przestała istnieć wyspa, powstał półwysep. Odtąd wszystkie statki zmierzające do Gdańska musiały przepływać przez Kanał Portowy.
Latarnia w Nowym Porcie, ok 1893
Wzrostowi Nowego Portu nie zaszkodziła epidemia cholery w 1831 r. Do nabrzeży doprowadzono kolej. W 1899 r. Nowy Port został połączony z Gdańskiem linią tramwaju elektrycznego jeżdżącego wzdłuż brzegu Wisły. Na początku XX wieku dzielnica była też doskonale skomunikowana z otoczeniem za pomocą dróg wodnych. Statki parowe z przystani przy Bramie Świętojańskiej od godziny 6.00 do 20.00 kursowały do Nowego Portu co godzina, a letnimi popołudniami jeszcze częściej. Na Westerplatte można było dostać się z Nowego Portu aż czterema promami. Dwa kolejne promy przecinały Basen Wolnocłowy (obecnie Władysława IV), a jeden łączył dzielnicę z Wisłoujściem. Z tych siedmiu połączeń wodnych obecnie działa tylko to ostatnie.
Powstawały fabryki, jak rafineria cukru i koszary piechoty w północnej części Nowego Portu, pomiędzy Olivaer Straße a Fischmeister Weg (ul. Wyzwolenia). Na terenie Szańca Zachodniego Twierdzy Wisłoujście zbudowano bazę paliwową cesarskiej marynarki wojennej.
Powstały kolejne domy mieszkalne i obiekty użyteczności publicznej, jak szkoły, kościoły katolicki i ewangelicki oraz cmentarze obu wyznań. Pod koniec XIX wieku Nowy Port był, po Wrzeszczu, drugą najlepiej rozwijającą się dzielnicą Gdańska. Istotny był problem higieny – ważnej na początku XX wieku dziedziny nauki i ruchu społecznego. Nie wszystkie domy były wyposażone w bieżącą wodę i kanalizację. Zbudowano więc łaźnię, która służyła uczniom szkół, jak i dorosłym mieszkańcom Nowego Portu.

panorama i mapa powstałe ok.1908 r.
Wolne Miasto i II wojna światowa
1920-1945
Po pierwszej wojnie światowej Nowy Port nie rozwijał się już tak dynamicznie, jak na przełomie XIX i XX wieku. Nadal zachodziły jednak zmiany. W 1929 r. zlikwidowano linię tramwajową wzdłuż Wisły. Została ona zastąpiona nową, przeprowadzoną dalej od rzeki. Powstała też nowa zajezdnia tramwajowa.
W zdemilitaryzowanym Wolnym Mieście duża część budynków koszar dawnej armii cesarskiej przypadła Polsce. Także koszary piechoty w Nowym Porcie przejęła Rzeczpospolita. Urządzono w nich punkt emigracyjny i inne placówki służące gdańskim Polakom. Przy brzegu Martwej Wisły powstał polski urząd pocztowy. W Nowym Porcie działało też a na półwyspie Westerplatte powstała Wojskowa Składnica Tranzytowa.
Mniej lub bardziej pokojowa koegzystencja Polaków i Niemców w Gdańsku skończyła się 1 września 1939 r. Z budynków Nowego Portu, między innymi z latarni morskiej, ostrzeliwane było Westerplatte, a po zakończeniu działań wojennych w dawnych koszarach hitlerowskie władze urządziły obóz jeniecki.
Czasy PRL
1945-1989
W 1945 r. urządzenia portowe w Nowym Porcie zostały w większości zniszczone, ale zabudowa mieszkaniowa i budynki publiczne ucierpiały w stosunkowo niewielkim stopniu. W 1954 r. otwarto kulturalne centrum dzielnicy – okazały socrealistyczny Morski Dom Kultury.
Lądowe połączenia Nowego Portu z innymi dzielnicami Gdańska funkcjonowały nieco podobnie jak przed wojną. W latach 60. można było tu dojechać trzema liniami tramwajowymi o numerach 3, 5 i 15, nie było natomiast linii autobusowej. Bardzo istotnym elementem życia dzielnicy była funkcjonująca przez ponad pół wieku, zamknięta niestety w 2004 r., linia Szybkiej Kolei Miejskiej.
Jeszcze pod koniec lat 40. Miejski Zakład Komunikacji utrzymywał ruch „tramwaju portowego” – pasażerskiego stateczku kursującego między targiem Rybnym a Nowym Portem. Potem wodne połączenia dzielnicy ze śródmieściem i innymi częściami miasta zostały zredukowane do promu kursującego na Westerplatte.
W latach 70. XX wieku powstał Port Północny. Nowemu Portowi, przez dziesiątki lat głównemu punktowi przeładunkowemu Gdańska
Współczesność
W ostatnich latach nastąpiła istotna zmiana w układzie przestrzennym Nowego Portu. Zlikwidowano bazę paliwową naprzeciw Twierdzy Wisłoujście, założonej tu za czasów cesarskiej niemieckiej marynarki wojennej. Dzielnica odzyskała dostęp do Wisły, co daje nowe możliwości rozwoju. Czy będą one wykorzystane?

Łaźnia w Nowym Porcie
W kwartale między Kirchen Straße (ul. Księdza Mariana Góreckiego), Albrecht Straße (ul. Strajku Dokerów), Sasper Straße (ul. Na Zaspę) i Mühlberg Straße (prowadząca niegdyś w kierunku pagórka z wiatrakiem obecna ul. Mylna) na przełomie XIX i XX wieku powstał duży zespół edukacyjny. Najpierw zbudowano nieistniejącą już szkołę od strony ulicy Na Zaspę, potem jeszcze cztery zachowane do dzisiaj budynki szkolne oraz łaźnię z salą gimnastyczną.
il.Elewacja łaźni w Nowym Porcie
Wybudowana w latach 1907-1909 łaźnia służyła zarówno uczniom miejscowych szkół jak i innym mieszkańcom dzielnicy. Powstał budynek bardzo podobny do wzniesionej nieco wcześniej łaźni na Dolnym Mieście, przy ulicy Jaskółczej. Układ funkcjonalny obu łaźni nie był jednak taki sam. Na Dolnym Mieście obok łaźni wzniesiono budynek pomocniczy, natomiast w Nowym Porcie wszystkie funkcje zostały umieszczone w jednym gmachu, co spowodowało, że było tu mniej wanien i pryszniców niż przy Jaskółczej.
Na parterze łaźni przy ulicy Strajku Dokerów umieszczono pomocnicze pomieszczenia jak: kotłownia, pralnia, suszarnia, pokój dla nauczycieli czekających na wykąpanych uczniów a także mieszkania służbowe. Na pierwsze piętro prowadziły aż trzy klatki schodowe, z których każda wiodła do oddzielnych pomieszczeń przeznaczonych dla kobiet, mężczyzn i dzieci. Panie dysponowały pięcioma wannami i trzema prysznicami a panowie mieli trzy wanny i dwanaście pryszniców. Każda wanna i prysznic były umieszczone w oddzielnej, zamykanej łazience z szafką na ubrania. Część kąpielowa przeznaczona dla dzieci wyglądała nieco inaczej. Było tu 48 niewielkich kabin do przebierania się i 24 prysznice. Na drugim piętrze znalazła miejsce sala gimnastyczna z szatnią, pomieszczeniem na sprzęt sportowy, toaletą i pokojem dla nauczycieli gimnastyki.
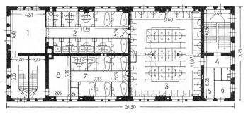
Plan łaźni
1. Poczekalnia męska
2. Łaźnia męska
3. Łaźnia uczniowska
4. Przedsionek
5. Pokój nauczycieli
6. Magazyn ręczników
7. Łaźnia damska
8. Poczekalnia damska
Elewacje łaźni otrzymały dekoracje w stylu neoromańskim, z półokrągłymi łukami, charakterystycznymi fryzami i portalami. Te dość surowe w wyrazie formy miały jedną istotną zaletę. Były stosunkowo proste i tanie w wykonaniu. Powstał więc budynek monumentalny, ale nie przytłaczający bogactwem dekoracji.
W latach 70. XX wieku większość mieszkań w Gdańsku była już wyposażona we własna łazienki. Publiczne łaźnie straciły rację bytu. Budynek zamkniętej łaźni w Nowym Porcie podupadał, aż wreszcie doczekał się nowego właściciela i pomysłu na nową funkcję – filię Centrum Sztuki Współczesnej działającego w bliźniaczym budynku na Dolnym Mieście.
Jakub Szczepański
Projekt „Rewitalizacja Nowego Portu w Gdańsku” jest współfinansowany z Unii Europejskiej ze środków Europejskiego Funduszu Rozwoju Regionalnego.